
标题: [求助]血透室布局流程 [打印本页]
作者: 快乐天使cd 时间: 2008-10-6 16:46 标题: [求助]血透室布局流程
请有血透室布局流程的同仁上传一个!谢谢!
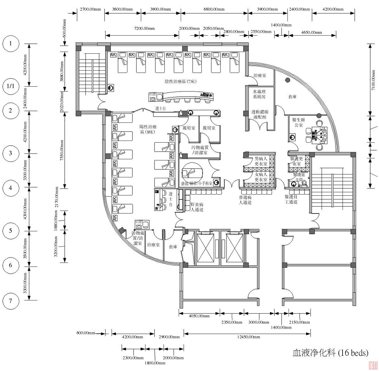
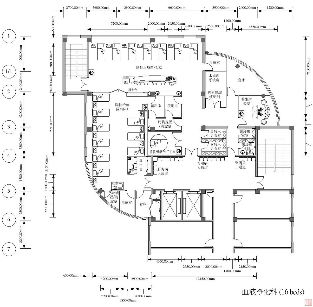
作者: 风平浪静 时间: 2008-10-6 20:53 标题: [转帖]某医院血液净化中心的设计图
原帖地址:http://www.icchina.org.cn/bbs/viewthread.php?tid=7405&extra=page%3D1%26amp%3Bfilter%3Dtype%26amp%3Btypeid%3D2
图片附件: [[求助]血透室布局流程] ltdQsV0f.jpg (2008-10-6 20:53, 270.84 KB) / 下载次数 950
http://cdcman.s1.288idc.com/attachment.php?aid=3228&k=4d9fd2393003006d247434e531072038&t=1771513546&sid=Mt53MT

| 欢迎光临 疾控家园 (http://cdcman.s1.288idc.com/) |
Powered by Discuz! 7.2 |