受邀者注册
登录
论坛
搜索
帮助
邀请码
关于我们
疾控家园
»
公众健康
» [求助]血透室布局流程
返回列表
发帖
[求助]血透室布局流程
快乐天使cd
发短消息
加为好友
快乐天使cd
当前离线
UID
28306
帖子
1
精华
0
积分
2530
阅读权限
70
在线时间
0 小时
注册时间
2008-9-26
最后登录
2009-2-9
新生入学
1
#
跳转到
»
倒序看帖
打印
字体大小:
t
T
发表于 2008-10-6 16:46
|
显示全部帖子
[求助]血透室布局流程
流程
,
求助
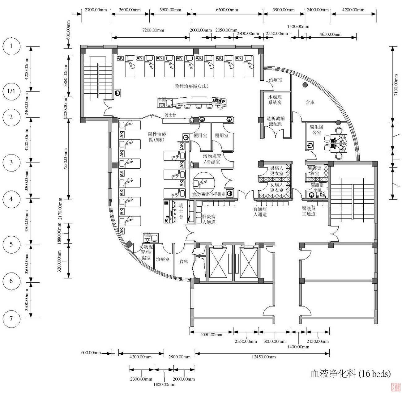
请有血透室布局流程的同仁上传一个!谢谢!
收藏
分享
返回列表
突发公共卫生事件应急管理
疾控2025
热点讨论
国家基本公共卫生服务
学习进修就业园地
专题
疾控信息化
绩效考核
突发公共卫生事件应急管理
疾病控制
传染病控制
新型冠状病毒肺炎
肺结核
性病与艾滋病
流感大流行应对
公众健康
慢病与伤害
卫生检验
健康教育促进
疾控机构建设与管理
卫生法律法规
生活庭院
雨花阁
电脑房
精品厅堂
家园管理
管理事务
家园发展研讨房
[收藏此主题]
[关注此主题的新回复]
[通过 QQ、MSN 分享给朋友]